產品分類product sort
- MP-X橡膠擠出熔體泵
- MP-L低粘度熔體泵
- MP-H高溫熔體泵
- MP-R反應釜輸送熔體泵
- MP-S標準型熔體泵
- MP-M無脈動型熔體泵
- MP-D系列管道泵
- MP-C透明材質熔體泵
- MP-PVC專用熔體泵
- 熔體泵PLC控制系統
- 熔體泵PID控制系統
聯系我們contact us
- 鄭州海科熔體泵有限公司
- 地 址:鄭州高新技術產業開發區長椿路11號5號樓A單元1層A1號、2層A2號
電 話:0371-67993100
傳 真:0371-67993200
手 機:18603711392
郵 箱:haikepump@126.com
推薦新聞recommended news
熔體計量泵的結構及工作原理
熔體計量泵結構
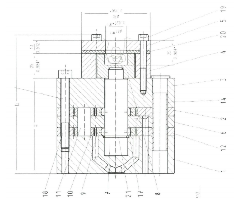
熔體計量泵的結構見圖1和圖2,它是雙層齒輪泵,主要由泵板1、泵板3、泵板6、泵殼2、泵殼12、泵軸7、齒輪9、齒輪10、聯軸器8、輪轂4和泵頭蓋板5組成。泵板1、泵板6和泵殼12組成一個密閉的空間,泵板6、泵板3和泵殼2組成另一個密閉的空間,每一個密閉空間里較中間的位置設置-個主動齒輪,四周環形均布6個從動齒輪,1個進料口和12個出料口都設計在泵板1的下表面(見圖2)。熔體計量泵在高溫高壓下工作,只能采用輸送介質對其潤滑。為為確保齒輪泵在運轉過程中潤滑良好,制造商設計了對各個運動部位潤滑的通道(圖1中淺灰色標示線)。



熔體計量泵工作原理
熔體計量泵是滌綸長絲紡絲過程中的高精度部件,工作時通過電機和減速機帶著驅動軸旋轉,驅動軸插在熔體計量泵的聯軸器中,帶動熔體計量泵泵軸轉動,從而使兩組齒輪(每組由一個主動齒輪和6個行星齒輪)嚙合。當齒輪嚙合運轉時,在吸入孔形成負壓,熔體被吸入泵內并填滿齒輪的齒谷,齒谷間的熔體在齒輪帶動下緊貼著泵殼行星孔的內壁回轉到出口,較后將經過精確計量的熔體排出。因為熔體黏度很高,為了保證計量的準確,熔體計量泵進口的熔體壓力- -般設定在5~9 MPa,同時熔體會充滿熔體計量泵內有相對運動的部位處(見圖1淺灰色線標示處),對泵軸7和軸套13、15、16接觸處潤滑,對聯軸器8與輪轂4及石墨片20等相對運轉部件之間自下而上進行潤滑。較后完成潤滑工作的熔體從熔體計量泵泵頭排出,堆積在接料盤里面,滿足泵的工作要求。
上一篇:熔體泵的發展趨勢
下一篇:介紹一種高粘度聚合物熔體泵




